Jahr: 1978-79

Adresse: Cunostr

Auftraggeber: GEBAU GmbH und andere

Funktion: Wohnungsbau

Zusammenarbeit: Büro Horst Ziel

Archivmaterial bei: Privat

 

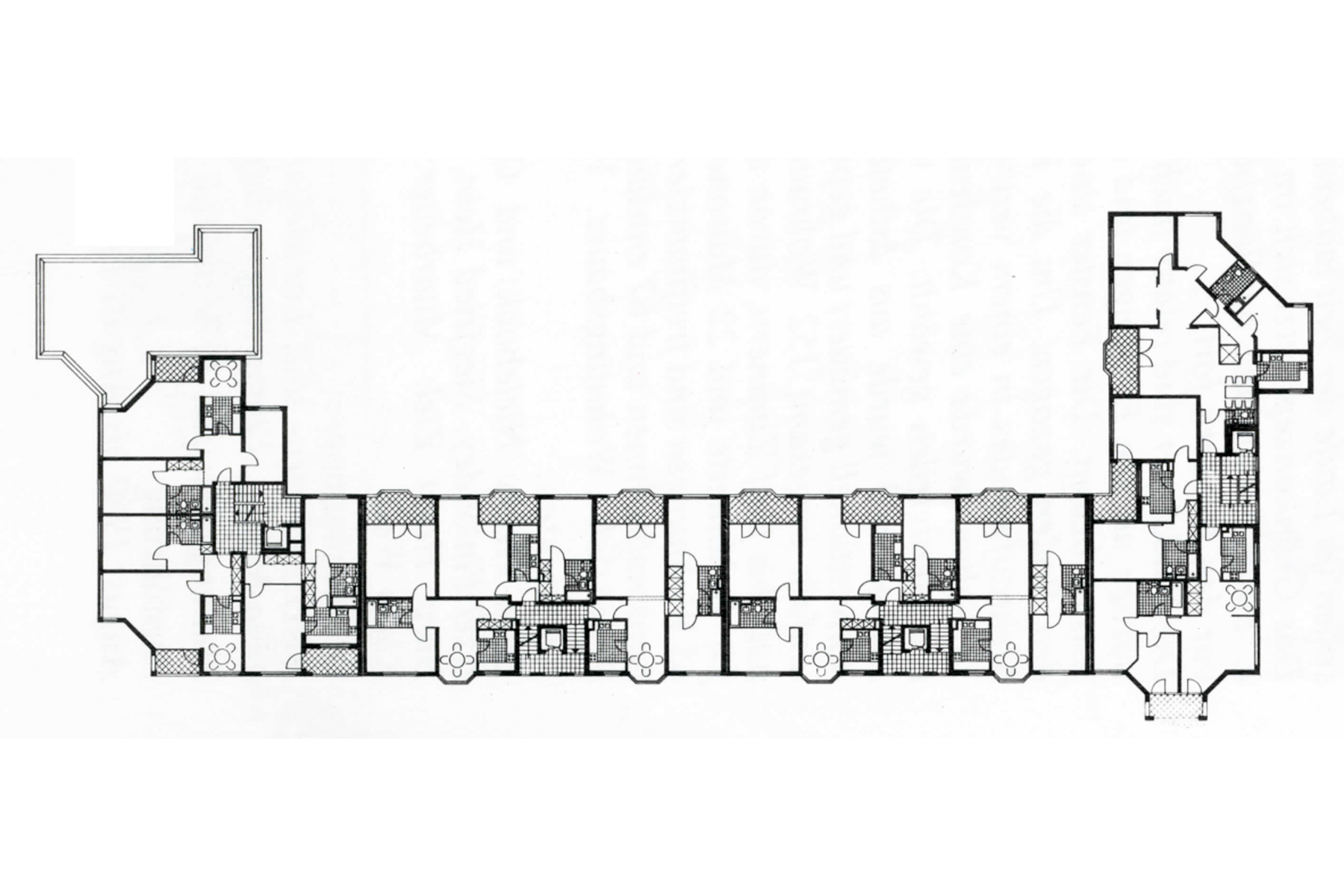
Die städtebauliche Einordnung der Neubebauung erfolgt durch großzügige Raumbildung, bezogen auf die unmittelbare Nachbarbebauung mit übergreifender Grünplanung, gemeinsame Frei- und Spielflächen sowie Platzausbildungen und Mietgärten als Abschluss zum benachbarten Kleingartengelände.

Heute:
PDF öffnen "Neue Heimat"

bwd  Seite 2/2  fwd
06_grundriss-block-a.jpg
07_lageplan.jpg
bwd  Seite 1/2  fwd
cunostr_img_2146.jpg
cunostr_img_2148.jpg
cunostr_img_2151.jpg
cunostr_img_2154.jpg